
ML型電動葫蘆門式起重機與CD、MD、HC等型號的電動葫蘆配套使用,是一種有軌運行的中小型起重機,其適用起重量5、10、16、20噸,適用跨度為12-30米,工作環(huán)境-20C-+40C。
本產品為一般用途起重機,多用于露天場所及倉庫的裝卸和抓取物料。本產品有地面操縱和室內操縱兩種形式,用戶可根據實際需要自由選擇。
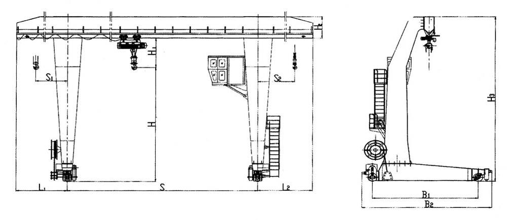
簡圖
技術參數表
| 起重機 | t | 5 | ||||
| 跨度 | m | 16 | 20 | 30 | ||
| 起升高度 | m | 6 9 | ||||
| 運行機構 | 運行速度 | 地面 | m/min | 20 | ||
| 司機室 | 20 30 40 | |||||
| 電動機 | 地面 | 型號/kw | YZR132M2-6/4X2 | YZR160M1-6/6.3x2 | ||
| 司機室 | ||||||
| 減速器 | ZSC400 | ZSC600 | ||||
| 車輪直徑 | mm | 400 | 500 | |||
| 電動葫蘆 | 型號 | CD1 MD1 | ||||
| 起升速度 | m/min | 8 8/0.8 | ||||
| 運行速度 | m/min | 20 | ||||
| 電動機 | 起升 | 型號/kw | ZD141-4/7.5 ZDS10.8/7.5 | |||
| 運行 | ZDY121-4/0.8 | |||||
| 工作制度 | A5 | |||||
| 薦用鋼軌 | P38 P43 | |||||
| 電源 | 三相交流 380V 50Hz | |||||
| 起重機質量 | 地面 | kg | 16500 | 20000 | 26500 | |
| 司機室 | kg | 17500 | 21000 | 27500 | ||
| 輪壓 ≤ | kN | 80 | 90 | 103 | ||
| 基本尺寸 | L1 | mm | 5000 | 6500 | 9000 | |
| L2 | mm | |||||
| H1 | mm | 1120 | ||||
| H2 | mm | 900 | 1000 | 1250 | ||
| H3 | mm | 8050/11050 | 8150/11150 | 8400/11400 | ||
| B1 | mm | 6000-7500 | 6000-7500 | 6000-7500 | ||
| B2 | mm | 4550-6050 | 4550-6050 | 4550-6050 | ||
| S1 | mm | 4600 | 6100 | 8500 | ||
| S2 | mm | 4600 | 6100 | 8500 | ||
本樣所提供重量為設計值,制造值±15%
| 起重機 | t | 10 | ||||
| 跨度 | m | 16 | 20 | 30 | ||
| 起升高度 | m | 6 9 | ||||
| 運行機構 | 運行速度 | 地面 | m/min | 20 | ||
| 司機室 | 20 30 40 | |||||
| 電動機 | 地面 | 型號/kw | YZR160M1-6/6.3X2 | YZR160M2-6/8.5x2 | ||
| 司機室 | YZR160M1-6/6.3X2 | YZR160M2-6/8.5x2 | ||||
| 減速器 | ZSC600 | |||||
| 車輪直徑 | mm | 500 | ||||
| 電動葫蘆 | 型號 | CD1 MD1 | ||||
| 起升速度 | m/min | 7 7/0.7 | ||||
| 運行速度 | m/min | 20(30) | ||||
| 電動機 | 起升 | 型號/kw | ZD151-4/13 ZDS11.5/13 | |||
| 運行 | ZDY121-4/0.8x2 | |||||
| 工作制度 | A5 | |||||
| 薦用鋼軌 | P38 P43 | |||||
| 電源 | 三相交流 380V 50Hz | |||||
| 起重機質量 | 地面 | kg | 22000 | 26500 | 37000 | |
| 司機室 | kg | 23000 | 27500 | 38000 | ||
| 輪壓 ≤ | kN | 128 | 140 | 161 | ||
| 基本尺寸 | L1 | mm | 5000 | 6500 | 9000 | |
| L2 | mm | |||||
| H1 | mm | 1350 | ||||
| H2 | mm | 1100 | 1200 | 1600 | ||
| H3 | mm | 8450/11450 | 8550/11450 | 8950/11950 | ||
| B1 | mm | 6000-7500 | 6000-7500 | 6000-7500 | ||
| B2 | mm | 4550-6050 | 4550-6050 | 4550-6050 | ||
| S1 | mm | 4500 | 6000 | 8500 | ||
| S2 | mm | 4500 | 6000 | 8500 | ||
本樣所提供重量為設計值,制造值±15%
| 起重機 | t | 16 | ||||
| 跨度 | m | 16 | 20 | 30 | ||
| 起升高度 | m | 6 9 | ||||
| 運行機構 | 運行速度 | 地面 | m/min | 20 | ||
| 司機室 | 20 30 40 | |||||
| 電動機 | 地面 | 型號/kw | YZR160M-6/6.3X2 | YZR160M-6/8.5x2 | ||
| 司機室 | YZR160M-6/6.3X2 | YZR160M-6/8.5x2 | ||||
| 減速器 | ZSC600 | |||||
| 車輪直徑 | mm | 500 | 600 | |||
| 電動葫蘆 | 型號 | CD1 MD1 | ||||
| 起升速度 | m/min | 3.5 3.5/0.35 | ||||
| 運行速度 | m/min | 20 | ||||
| 電動機 | 起升 | 型號/kw | ZD151-4/13 ZDS11.5/13 | |||
| 運行 | ZDY121-4/0.8x2 | |||||
| 工作制度 | A5 | |||||
| 薦用鋼軌 | P38 P43 | |||||
| 電源 | 三相交流 380V 50Hz | |||||
| 起重機質量 | 地面 | kg | 30000 | 33000 | 48000 | |
| 司機室 | kg | 31000 | 34000 | 49000 | ||
| 輪壓 ≤ | kN | 170 | 180 | 220 | ||
| 基本尺寸 | L1 | mm | 5000 | 6500 | 9000 | |
| L2 | mm | |||||
| H1 | mm | 2100 | ||||
| H2 | mm | 1600 | 1800 | 2100 | ||
| H3 | mm | 9700/12700 | 9900/12900 | 10200/13200 | ||
| B1 | mm | 7000-7500 | ||||
| B2 | mm | 8600-9300 | ||||
| S1 | mm | 4000 | 5500 | 8000 | ||
| S2 | mm | |||||
本樣所提供重量為設計值,制造值±15%
| 起重機 | t | 20 | ||||
| 跨度 | m | 16 | 20 | 30 | ||
| 起升高度 | m | 9 | ||||
| 運行機構 | 運行速度 | 地面 | m/min | 20 | ||
| 司機室 | 20 30 40 | |||||
| 電動機 | 地面 | 型號/kw | YZR160M2-6/8.5X2 | YZR160L-6/13x2 | ||
| 司機室 | YZR160M2-6/8.5X2 | YZR160L-6/13x2 | ||||
| 減速器 | ZSC600 | ZSC650 | ||||
| 車輪直徑 | mm | 600 | 700 | |||
| 電動葫蘆 | 型號 | HC型 | ||||
| 起升速度 | m/min | 3.5 | ||||
| 運行速度 | m/min | 20(30) | ||||
| 電動機 | 起升 | 型號/kw | ZD152-4/18.5 ZDS12.2/18.5 | |||
| 運行 | ZDY121-4/0.8x4 | |||||
| 工作制度 | A5 | |||||
| 薦用鋼軌 | P38 P43 | |||||
| 電源 | 三相交流 380V 50Hz | |||||
| 起重機質量 | 地面 | kg | 35000 | 39000 | 54000 | |
| 司機室 | kg | 36000 | 40000 | 55000 | ||
| 輪壓 ≤ | kN | 270 | 290 | 330 | ||
| 基本尺寸 | L1 | mm | 5000 | 6500 | 9000 | |
| L2 | mm | |||||
| H1 | mm | 2300 | ||||
| H2 | mm | 1600 | 1800 | 2200 | ||
| H3 | mm | 9900/12900 | 10100/13100 | 10500/13500 | ||
| B1 | mm | 7500-8000 | ||||
| B2 | mm | 9000-9800 | ||||
| S1 | mm | 4000 | 5500 | 8000 | ||
| S2 | mm | |||||
本樣所提供重量為設計值,制造值±15%
ML型電動葫蘆門式起重機
ML型電動葫蘆門式起重機 2019-5-27 本文被閱讀 6211 次
| 上一條:LD型電動單梁起重機 | 下一條:地平車 |




手機:和經理18854868555 杜經理13561784486

